Avocet Place (Phase 1)

Thorrington

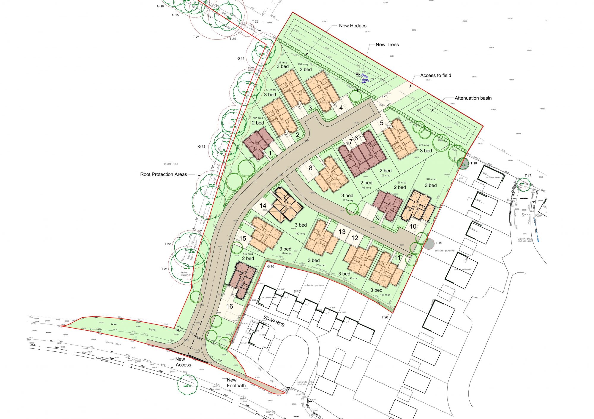
Scott Properties promoted the site for a development of 16 age-restricted 2 and 3 bedroom bungalows, including 1 fully accessible property which was gifted to the Council to address an identified local housing need. The site was purchased by Scott Residential who completed the development in 2021.

Local Authority:
Tendring
Project Type:
Residential
Site Area:
2 acres
Application Type:
Detailed application
Purchaser:
Scott Residential